2006年造價工程師真題-案例分析試題六
課程推薦:精品VIP―網+面強勢結合 環球造價工程師案例強化套餐
相關推薦:2014年造價工程師在線模考 2014年造價工程師考試大綱
專題推薦:環球網校造價最全習題演練套餐 環球網校造價工程師培訓權威
試題六(40分)
本試題分三個專業(1.土建工程、Ⅱ.工業管道安裝工程、Ⅲ.電氣安裝工程),請任選其中一題作答。若選作多題,按所答的第一題(卷面順序)計分。
1.土建工程
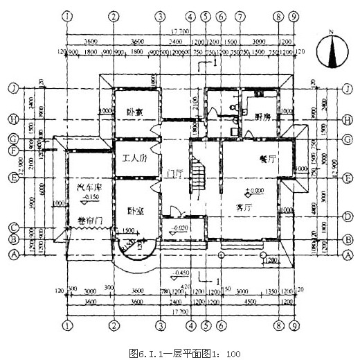
某別墅部分設計如圖6.I所示。墻體除注明外均為240mm厚。坡屋面構造做法:鋼筋混凝土屋面板表面清掃干凈,素水泥漿一道,20mm厚l:3水泥砂漿找平,刷熱防水膏,采用20mm厚1:3干硬性水泥砂漿防水保護層;25mm厚1:1:4水泥石灰砂漿鋪瓦屋面。臥室地面構造做法:素土夯實,60mm厚C10混凝土墊層,20mm厚l:2水泥砂漿抹面壓光。臥室按面構造做法:150mm現澆鋼筋混凝土樓板,素水泥漿一道,20mm厚l:2水泥砂漿抹面壓光。
問題
1.依據《建筑工程建筑面積計算規范}(GB/T50353――2005)的規定,計算別墅的建筑面積。將計算過程及計量單位、計算結果填入答題紙表6.I.1“建筑面積計算表”。

注:弧形落地窗半徑只=1500mm(為B軸外墻外邊線到弧形窗邊線的距離,弧形窗的厚度忽略不計)
2.依據《建設工程工程量清單計價規范》計算臥室(不含衛生問)樓面、地面工程量,計算坡屋面工程量。將計算過程及結果填入答題紙表6.I.2“分部分項工程量計算表”。
3.依據《建設工程工程量清單計價規范》編制臥室樓面、地面,坡屋面工程的分部分項工程量清單,填入答題紙表6.I.3“分部分項工程量清單表”(水泥砂漿樓地面的項目編碼為020101001,瓦屋面的項目編碼為010701001)。
4.依據《建設工程工程量清單計價規范》編制“單位工程費匯總表”。假設別墅部分項目的分部分項工程量清單計價合計207 822元,其中人工費41 560元;措施項目清單計價合計48 492元;其他項目清單計價合計l2 123元;規費以人工費為基數計取,費率為30%;稅率為3.413%。將有關數據和相關內容填入答題紙表6.I.4“單位工程費匯總表”。
(計算結果均保留兩位小數。)



Ⅱ.管道安裝工程
1.某總承包施工企業根據某安裝工程的招標文件和施工方案決定按以下數據及要求進行投標報價:
該安裝工程按設計文件計算出各分部分項工程工料機費用合計為6000萬元,其中人工費占10%。
安裝工程腳手架搭拆的工料機費用,按各分部分項工程人工費合計的8%計取,其中人工費占25%;安全防護、文明施工措施費用,按當地工程造價管理機構發布的規定計100萬元,根據建設部建辦[2005]89號《建筑工程安全防護、文明施工措施費用及使用管理規定》中“投標方安全防護、文明施工措施的報價,不得低于根據工程所在地工程造價管理機構測定費率計算所需費用總額的90%”的規定,業主要求按90%計;其他措施項目清單費用按l50萬元計。
施工管理費、利潤分別按人工費的60%、40%計。
按業主要求,總承包企業將占工程總量20%的部分專業工程發包給某專業承包企業,總承包服務費按分包專業工程各分部分項工程人工費合計的l5%計取。
規費按8萬元計;稅金按稅率3.50%計。
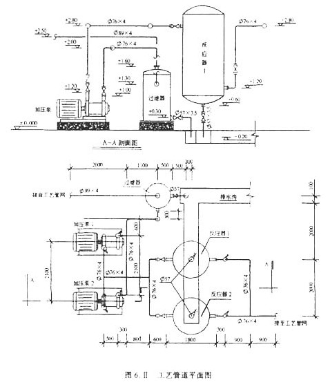
2.其中某生產裝置中部分工藝管道系統如圖6.Ⅱ所示。
管道系統各分部分項工程量清單項目的統一編碼見下表:

問題
1.按照《建設工程工程量清單計價規范》和建標[2003]206號文《建筑安裝工程費用項目組成》的規定,計算出總承包企業對該單項工程的(含分包專業工程)投標報價。將各項費用的計算結果填入答題紙表6.Ⅱ。1“單項工程費用匯總表”中,其計算過程寫在表6.Ⅱ.1“單項工程費用匯總表”的下面。(計算結果均保留整數)
2.根據《建設工程工程量清單計價規范》的規定,計算管道φ89×4、管道φ76×4、管道φ57×3.5、管架制作安裝、焊縫x光射線探傷、焊縫超聲波探傷等六項工程量,并寫出計算過程(計算結果均保留一位小數)。編列出該管道系統(注:閥門、法蘭安裝除外)的分部分項工程量清單項目,將結果填入答題紙表6.Ⅱ.2“分部分項工程量清單表”。

說明:
1.本圖所示為某工廠生產裝置的部分工藝管道系統,該管道系統工作壓力為2.0MPa.圖中標注尺寸標高以m計,其他均以mm計。
2.管道均采用20#碳鋼無縫鋼管,彎頭采用成品壓制彎頭,三通為現場挖眼連接,管道系統的焊接均為氬電聯焊。
3.所有法蘭為碳鋼對焊法蘭;閥門型號:止回閥為H41H一25,截止閥為J41H一25,采用對焊法蘭連接。
4.管道支架為普通支架,共耗用鋼材42.4kg,其中施工損耗為6%。
5.管道系統安裝就位后,對φ76×4的管線的焊口進行無損探傷。其中法蘭處焊口采用超聲波探傷;管道焊縫采用x光射線探傷,片子規格為80mm×l50mm,焊口按36個計。
6.管道安裝完畢后,均進行水壓試驗和空氣吹掃。管道、管道支架除銹后,均進行刷防銹漆、調和漆各兩遍。
Ⅲ.電氣安裝工程
某別墅局部照明系統回路如圖6.Ⅲ.1和圖6.Ⅲ.2所示。
問題
1.根據圖示內容和《建設工程工程量清單計價規范》的規定,計算相關工程量和編制分部分項工程量清單。將配管和配線的計算式填入答題紙上的相應位置,并填寫答題織表6.Ⅲ.1“分部分項工程量清單表”。
2.假設鍍鋅鋼管DN20暗配和管內穿絕緣導線BV2.5mm2清單工程量分別為30m和80m,依據上述相關費用數據計算以上兩個項目的綜合單價,并分別填寫答題紙表6.Ⅲ.2和表6.Ⅲ.3“分部分項工程量清單綜合單價計算表”。
3.依據問題2中計算所得的數據進行綜合單價分析,將電氣配管(鍍鋅鋼管DN20暗配)和電氣配線(管內穿絕緣導線BV2.5mm2)兩個項目的綜合單價及其組成計算后填寫答題紙表6.Ⅲ.4“分部分項工程量清單綜合單價分析表”。
(計算過程和結果均保留兩位小數。)

最新資訊
- 更新版:2025年一級造價師案例考試真題及答案(1-3題)2025-10-27
- 速領!2025年一級造價師各科目考試真題及答案【完整版】2025-10-26
- 2025年一級造價師《案例分析》真題解析(試題三)2025-10-25
- 2025年一級造價師《安裝計量》真題答案61-70題2025-10-23
- 2025年一級造價師《安裝計量》真題答案41-50題2025-10-23
- 2025年一級造價師《安裝計量》真題及答案31-40題2025-10-23
- 2025年一級造價師《安裝計量》真題答案21-30題2025-10-23
- 2025年一級造價師《案例分析》考試真題及答案(試題一)2025-10-23
- 2025年一級造價師案例真題及答案試題五(土建專業)2025-10-22
- 2025年一級造價師《土建計量》考試真題答案51-60題2025-10-22