2014年造價師《案例分析》教材第三章案例一
課程推薦:精品VIP―網+面強勢結合 環球造價工程師案例強化套餐
相關推薦:2014年造價工程師在線模考 2014年造價工程師考試大綱
專題推薦:環球網校造價最全習題演練套餐 環球網校造價工程師培訓權威
第三章 工程計量與計價
本章基本知識點:
1.《全國統一建筑安裝工程基礎定額》、《全國統一建筑工程預算工程量計算規則》、《全國統一安裝工程預算工程量計算規則》、《建設工程工程量清單計價規范》(GB50500一2013)、《房屋建筑與裝飾工程量計算規范》(GB50854―2013)、《通用安裝工程工程量計算規范》( GB50856―2013)、《建筑工程建筑面積計算規范》(GB/T50353―2005)、《建筑安裝工程費用項目組成》(建標(2013)44號文件);
2.建筑安裝工程人工、材料、機械臺班消耗指標的確定方法;
3.概預算工料單價的組成、確定、換算及補充方法;
4.工程造價指數的確定及運用;
5.設計概算的編制方法;
6.單位工程施工圖預算的編制方法;
7.建設工程工程量清單計價方法。
【案例一】
背景:
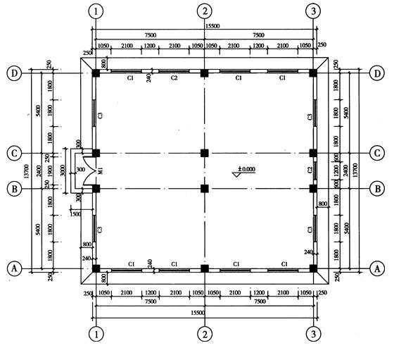
某鋼筋混凝土框架結構建筑物,共四層,首層層高4.2m,第二至四層層高分別為3.9m,首層平面圖、柱獨立基礎配筋圖、柱網布置及配筋圖、一層頂梁結構圖、一層 頂板結構圖如圖3-1A、圖3-1B、圖3-1C、圖3-1D、圖3-1E所示。柱頂的結構標高為15.87m,外墻為240mm厚加氣混凝土砌塊填充墻,首層墻體砌筑在頂面標高為-0. 20m的鋼筋混凝土基礎梁上,M5.0混合砂漿砌筑。 M1為1900mm×3300mm的鋁合金平開門;C1為2100mm×2400mm的鋁合金推拉窗;C2為1200mm×2400mm的鋁合金推拉窗;C3為1800mm×2400mm的鋁合金推拉窗;門窗詳見圖集L03J602;窗臺高900mmo門窗洞口上設鋼筋混凝土過梁,截面為240mm×180mm,過梁兩端各伸入砌體250mm。已知本工程抗震設防烈度為7度,抗震等級為四級(框架結構),梁、板、柱的混凝土均采用C30商品混凝土;鋼筋的保護層厚度:板為15mm,梁柱為25mm,基礎為35mm。樓板厚有150mm.lOOmm兩種。塊料地面的做法為:素水泥漿一遍,25mm厚1:3干硬性水泥砂漿結合層,800mm×800mm全瓷地面磚,白水泥砂漿擦縫。木質踢腳線高150mm,基層為9mm厚膠合板,面層為紅櫸木裝飾板,上口釘木線。柱面的裝飾做法為:木龍骨櫸木飾面包方柱,木龍骨為25mm×30mm,中距300mm×300mm,基層為9mm厚膠合板,面層為紅櫸木裝飾板。四周內墻面做法為:20mm厚1:2.5水泥砂漿抹面。天棚吊頂為輕鋼龍骨礦棉板平頂,U形輕鋼龍骨中距為450mm×450mm,面層為礦棉吸聲板,首層吊頂底標高為3.4m。




問題:
1.依據《房屋建筑與裝飾工程量計算規范》( GB50854―2013)的要求計算建筑物首層的過梁、填充墻、矩形柱(框架柱)、矩形梁(框架梁)、平板、塊料地面、木質踢腳線、墻面抹灰、柱面(包括靠墻柱)裝飾、吊頂天棚的工程量。將計算過程及結果填人分部分項工程量計算表3-1中。


(未注明的板分布筋為鹽8@ 250)
2.依據《房屋建筑與裝飾工程量計算規范》和《建設工程工程量清單計價規范》( GB50500-2013)(以下簡稱《計價規范》)編制建筑物首層的過梁、填充墻、矩形柱(框架柱)、矩形梁(框架梁)、平板、塊料地面、木質踢腳線、墻面抹灰、柱面(包括靠墻柱)裝飾、吊頂天棚的分部分項工程量清單,分部分項工程的統一編碼,見表3-2 。

3.鋼筋的理論重量見表3-3,計算②軸線的KL4、⑥軸線相交于②軸線的KZ1中除了箍筋、腰筋、拉筋之外的其他鋼筋工程量以及①~②與④~⑤之間的LB1中底部鋼筋的工程量。將計算過程及結果填人鋼筋工程量計算表3-4中。鋼筋的錨固長度為40d,鋼筋接頭為對頭焊接。

分析要點:
問題1:依據《房屋建筑與裝飾工程量計算規范》對工程量計算的規定,掌握分部分項工程清單工程量的計算方法。
問題2:依據《房屋建筑與裝飾工程量計算規范》和《計價規范》的規定和問題1的工程量計算結果,編制相應分部分項工程量清單,掌握項目特征描述的內容。
問題3:按照《全國統一建筑工程預算工程量計算規則》計算各類構件的鋼筋的工程量。考核鋼筋混凝土結構中柱、梁、板的鋼筋平面整體表示方法的識圖和計算,識圖方法按照《混凝土結構施工圖平面整體表示方法制圖規則和構造詳圖》(現澆混凝土框架、剪力墻、梁、板)(llG101--1)的規定,柱插筋在基礎中的錨固做法詳見《混凝土結構施工圖平面整體表示方法制圖規則和構造詳圖》(獨立基礎、條形基礎、筏形基礎及樁基承臺)( 11G101--3)的規定。
答呈:
問題1:
解:依據《房屋建筑與裝飾工程量計算規范》計算建筑物首層的過梁、填充墻、矩形柱(框架柱)、矩形梁(框架梁)、平板、塊料地面、木質踢腳線、墻面抹灰、柱面(包括靠墻柱)裝飾、吊頂天棚的工程量,計算過程見表3-5。



問題2:
解:依據《房屋建筑與裝飾工程量計算規范》和《計價規范》編制建筑物首層的過梁、填充墻、矩形柱(框架柱)、矩形梁(框架梁)、平板、地面瓷磚、木質踢腳板、墻面一般抹灰、柱面裝飾、吊頂天棚的分部分項工程量清單與計價表,見表3-6。


問題3:
解:計算2軸線的KIA、⑥軸線相交于②軸線的KZ1中除了箍筋、腰筋、拉筋之外的其他鋼筋工程量以及LB1中的底部鋼筋的工程量。將計算結果填入鋼筋工程量計算表中,見表3-7。
LB1中下部Φ8鋼筋的根數:
(5400 - 150 - 50+250 - 300 - 50)/150+1=35(根)
LB1中下部Φ10鋼筋的根數:
(7500 - 150 - 50+250 - 300 - 50)/150+1 =49(根)
表3-7 鋼筋工程量計算表


最新資訊
- 備考必看:一級造價師《安裝計量》十大核心知識點總結2025-11-02
- 速看!一級造價師《土建計量》十大核心考點總結2025-11-01
- 免費分享:一級造價師《工程計價》十大核心考點總結2025-10-31
- 一鍵收藏:一級造價師《造價管理》十大核心考點總結2025-10-30
- 免費分享:2025年一級造價師《工程計價》考點匯總2025-10-29
- 2025年一級造價師《工程計價》考試難度及考點分析2025-10-28
- 免費分享:2025年一級造價師《造價管理》考點匯總2025-10-27
- 免費分享:2025年一級造價師案例分析重要考點匯總2025-10-27
- 2025年一級造價師《造價管理》重點考查內容2025-10-24
- 深度解析:2025年一級造價師案例考試難度及考察重點2025-10-23