2007年造價工程師真題-案例分析試題六
課程推薦:精品VIP―網+面強勢結合 環球造價工程師案例強化套餐
相關推薦:2014年造價工程師在線模考 2014年造價工程師考試大綱
專題推薦:環球網校造價最全習題演練套餐 環球網校造價工程師培訓權威
試題六:(40分)
本試題分三個專業(Ⅰ土建工程、Ⅱ工業管道安裝工程、Ⅲ電氣安裝工程),請任選其中一題作答。若選作多題,按所答的第一題(卷面順序)計分。
Ⅰ.土建工程
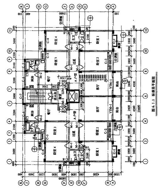
某小高層住宅樓建筑部分設計如圖6.I所示,共12層。每層層高均為3米,電梯機房與樓梯間部分凸出屋面。墻體除注明者外均為200mm厚加氣混凝土墻.軸線位于墻中。外墻采用50mm厚聚苯板保溫。樓面做法為20mm厚水泥砂漿抹面壓光。樓層鋼筋混凝土板厚100mm,內墻做法為20mm厚混合砂漿抹面壓光。為簡化計算首層建筑面積按標準層建筑面積計算.陽臺為全封閉陽臺,⑤和⑦軸上混凝土柱超過墻體寬度部分建筑面積忽略不計,門窗洞口尺寸見表6.I.1,工程做法見表6.I.2.

問題:
1.依據《建筑工程建筑面積計算規范》(GB/T 50353-2005)的規定,計算小高層住宅樓的建筑面積。
將計算過程、計量單位及計算結果填入答題紙表6.I.1“建筑面積計算”。
2.依據《建筑工程工程量清單計價規范》附錄B的工程量計算規則,計算小高層住宅樓二層臥室1、臥室2、主衛的樓面工程量以及墻面工程量.將計算過程、計量單位及計算結果按要求填入答題紙表6.I.2“分部分硬工程量計算”。
3.結合圖紙及表6.I.2“工程做法”進行分部分項工程量清單的項目特征描述,將描述和分項計量單位填入答題紙表6.I.3“分部分項工程量清單”。
(計算結果均保留兩位小數。)


Ⅱ.管道安裝工程
1.某住宅區室外熱水管網布置如圖6.Ⅱ所示。
管網部分分部分項工程量清單項目的統一編碼見下表:

2.有一輸氣管線工程需用Φ11020×6的碳鋼板卷管直管,按管道安裝設計施工圖示直管段凈長度(不含閥門、管件等)共5000m,采用埋弧自動焊接。所用鋼材均由業主供應標準成卷鋼材。某承包商承擔了該項板卷管直管的制作工程,板卷管直管制作的工料機單價和相關要求說明如下:

注:1. Φ1020×6的碳鋼板卷管直管重量按150kg/m計;
2.按照以下規定:碳鋼板卷管安裝的損耗率為4%。每制作1t的板卷管直管工程量耗用鋼板材料1.05t;鋼卷板開卷與平直的施工損耗率為3%;
3.管理費、利潤分別按人工費的60%、40%計。
問題:
1.將各項管道和管道支架制作安裝清單項目工程量的計算過程,分別寫在答題紙相應位置。根據《建設工程工程量清單計價規范》的有關規定,編制如圖6.Ⅱ所示管網系統的分部分項工程量清單項目,將結果填入答題紙表6.Ⅱ.1“分部分項工程量清單表”第2、3、4、5欄內。
2.在答題紙相應位置寫出答題紙中要求的有關項目的計算過程:
(1) Φ1020×6碳鋼板直管制作工程量;
(2)制作碳鋼板直管前,需對成卷碳鋼板進行開卷與平直的工程量;
(3)發包人所供應標準成卷鋼材的數量及其費用;
(4)承包人應該向發包方計取的該項鋼板卷管制作分部分項工程量清單費用數額。依據《建設工程工程量清單計價規范》《全國統一安裝工程預算定額》的有關的規定,計算出Φ1020×6碳鋼板直管制作(清單項目的統一編碼為030613001)的分部分項工程量清單綜合單價,將相關數據填入答題紙表
6.Ⅱ.2“分部分項工程量清單綜合單價計算表”中。
(以上計算結果保留兩位小數。)

1.本圖所示為某住宅小區室外熱水管網平面布置圖.該管道系統工作壓力為1.0MPa.熱水溫度為95℃.圖中平面尺寸均以相對坐標標注.單位以m計,詳圖尺寸以mm計。
2.管道敷設管溝(高600mm×寬800mm)內,管道均采用20#碳鋼無縫鋼管,彎頭采用成品沖壓彎頭、異徑管,三通現場挖眼連接,管道系統全部采用手工電弧焊接。
3.閘閥型號為Z41H-1.6,止回閥型號為H41H-1.6.水表采用水平螺翼式法蘭連接,管網所用法蘭均采用碳鋼平焊法蘭連接.
4.管道支架為型鋼橫擔.管座采用碳鋼板現場制作,Φ325×8管道每7m設一處,每處重量為16kg;Φ159×6管道每6m設一處,每處重量為15kg;Φ108×5管道每5m設一處。每處重量為12kg.其中施工損耗率為6%.
5.管道安裝完畢用水進行水壓試驗和消毒沖洗,之后管道外壁進行除銹,刷紅丹防銹漆二遍。外包巖棉管殼(厚度為60mm)作絕熱層。外纏鋁箔作保護層。
6.管道支架進行除銹后,均刷紅丹防銹漆、調和漆各二遍。
Ⅲ.電氣安裝工程
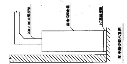
某氮氣站動力安裝工程如圖6.Ⅲ所示:
1.PD1、PD2均為定型動力配電箱,落地式安裝,基礎型鋼用10#槽鋼制作.其重量為10kg/m.
2.PD1至PD2電纜沿橋架敷設-其余電纜均穿鋼管敷設.埋地鋼管標準高為-0.2m.埋地鋼管至動力配電箱出口處高出地坪+0.1m.
3.4臺設備基礎標高均為+0.3m.至設備電機處的配管管口高出基礎面0.2m,均連接1根長0.8m同管徑的金屬軟管。
4.計算電纜長度時不計算電纜敷設弛度、波形彎度和交叉的附加長度,連接電機處,出管口后電纜的預留長度為1m,電纜頭為戶內干包式,其附加長度不計。
5.電纜橋架(200×100)的水平長度為22m.
6.表中數據為計算該動力安裝工程的相關費用:

管理費和利潤分別按人工費的55%和45%計。
分部分項工程量清單的統一編碼為:

問題:
1.根據圖示內容和《建設工程工程量清單計價規范》的規定,計算相關工程量和編制分部分項工程量清單。將配管、電纜敷設和電纜橋架工程量的計算式填入答題紙上的相應位置,并填寫答題紙表6.Ⅲ。1
“分部分項工程量清單”。
2.假設電力電統YJV4×16穿管敷設的清單工程量為30m.依據上述相關費用數據計算配電箱(落地式安裝)和電力電纜YJV4×16穿管敷設二個項目的綜合單價,并分別填入答題紙表6.Ⅲ。2和表6.Ⅲ。3
“分部分項工程量清單綜合單價計算表”。
(計算過程和結果均保留兩位小數。)


試題六答案:(40分)
Ⅰ.土建工程
問題1.

問題2:(12分)

問題3:(12分)

Ⅱ.管道安裝工程
問題1.
寫出下列分部分項清單項日工程量的計算式:
1.管道DN300工程量的計算式:
(940-520)+2×3.5=420+7=427(m) (1.5分)
2.管道DN150工程量的計算式:
(400-305)+1=96(m)
3.管道DN100工程量的計算式:
(528-305+2×2.5)+(528-400-1)+(940-935)×2=228+127+10=365(m) (2分)
4.管道支架制作安裝工程量的計算式:
(427÷7×16)+(96÷6×15)+(365÷5×12)=976+240+876=2092(kg) (2分)


問題2.
各有關項目的計算過程;
1.Φ1020×6碳鋼板直管制作工程量。
5000×0.15×1.04=780(t)(1.5分)
2.制作碳鋼板直管前,需對成卷碳鋼板進行開卷與平直的工程量。
780×1.05=819(t) (1分)
3.業主應供應標準成卷板材的數量及其費用。
標準成卷板材的數量: 819×(1+3%)=843.57(t) (1分)
標準成卷板材的費用:843.57×4800=4049136(元) (1分)
4.承包商應向業主計取的該項碳鋼板直管制作分部分項工程量清單費用數額;
5320536-4049136=1271400(元) (1分)

1.電氣安裝工程
問題1
1.鋼管Φ25工程量計算:
10+7+(0.2+0.1)×2+(0.2+0.3+0.2)×2=19(m) (2分)
2.鋼管Φ40工程量計算:
8+12+(0.2+0.1)×2+(0.2+0.3+0.2)×2=22(m) (2分)
3.電纜YJV4×2.5工程量計算:
10+7+(0.2+0.1)×2+(0.2+0.3+0.2)×2=19(m) (1.5分)
4.電纜YJV4×16工程量計算:
8+12+(0.2+0.1)×2+(0.2+0.3+0.2)×2=22(m) (1.5分)
5.電纜橋架200×100工程量計算:
22+[3-(2+0.1)]×2=23.8(m) (2分)
6.電纜YJV4×50工程量計算:
22+[3-(2+0.1)]×2=23.8(m) (1.5分)

問題2:(20.5分)



最新資訊
- 更新版:2025年一級造價師案例考試真題及答案(1-3題)2025-10-27
- 速領!2025年一級造價師各科目考試真題及答案【完整版】2025-10-26
- 2025年一級造價師《案例分析》真題解析(試題三)2025-10-25
- 2025年一級造價師《安裝計量》真題答案61-70題2025-10-23
- 2025年一級造價師《安裝計量》真題答案41-50題2025-10-23
- 2025年一級造價師《安裝計量》真題及答案31-40題2025-10-23
- 2025年一級造價師《安裝計量》真題答案21-30題2025-10-23
- 2025年一級造價師《案例分析》考試真題及答案(試題一)2025-10-23
- 2025年一級造價師案例真題及答案試題五(土建專業)2025-10-22
- 2025年一級造價師《土建計量》考試真題答案51-60題2025-10-22