設計前期場地與建筑設計綜合習題精選6
1在建筑初步設計階段開始之前最先應取得下列哪一項資料( )。
A.項目建議書 B.工程地質報告 C.可行性研究報告 D.施工許可證
提示:基本建設程序中所提出的基本步驟,建筑初步設計文件的形成應根據可行性研究報告進行。因此,最先取得的資料應為可行性研究報告。
2關于場地管線布置,下列哪項不正確( )。
A.地下管線布置,宜按管線敷設深度,自建筑物向道路由淺到深排列
B.地下管線的相互位置發生矛盾時,自流的管線應當讓有壓力的管線
C.管線宜與建筑物或道路平行布置
D.主干管線應布置在靠近主要用戶較多的一側
提示:根據在總平面設計中,管線敷設發生矛盾時的處理原則:臨時性讓永久性的;管徑小的讓管徑大的;可以彎曲的讓不可彎曲的;新設計的讓原有的;一般情況下,有壓力的管道讓自流管道;施工工程量小的讓工程量大的管道。
3下列總平面布置設計原則中,何者正確( )。
A.高度低于4m的建筑物允許向道路上空自由排泄雨水
B.多層建筑的陽臺允許向道路上空自由排泄雨水
C.建筑物和建筑突出物均不得向道路上空排泄雨水
D.除局部突出部分外,建筑物均不得向道路上空排泄雨水
提示:《民用建筑設計通則》規定:建筑物和建筑突出物均不得向道路上空排泄雨水。
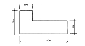
4民用建筑防火最大容許長度應符合規范要求,下面所示建筑物,其長度計算值應為( )m。
A.120 B.80 C.60 D.50

提示:建筑物的長度,系指建筑物各分段中線長度的總和。如遇有不規則的平面,采用各種不同量法的較大值。
5下列哪一項不是確定公共建筑通道寬度與長度的主要因素( )。
A.空間感受
B.功能需要
C.通道兩側門洞的數量
D.防火規定
提示:見《公共建筑設計原理》第30頁,第二章第一節。門洞數量問題相對次要。
6住宅套型的功能空間通常由三部分組成,下列哪項應除外( )。
A.居住空間
B.廚衛空間
C.交通空間
D.儲藏空間
提示:見《住宅建筑設計原理》第9頁,第一章第二節。儲藏空間已經不是住宅功能空間的必要部分,儲藏功能可以由家具來提供。
7高層建筑內觀眾廳、會議廳等人員密集場所疏散口的設置,哪一條是錯誤的( )。
A.疏散出口最小凈寬不應小于1.4m
B.疏散出口可設雙向彈簧門
C.疏散出口的門內外1.4m范圍內不應設踏步
D.疏散門不應設置門檻
提示:見《高層民用建筑設計防火規范》6.1.11, 門必須外開,不可用雙向彈簧門。
8在計算人防工程防火分區面積時,溜冰館的冰場、游泳館的游泳池、射擊館的靶道區、保齡球館的球道區等面積是否應計入防火分區面積( )。
A.應全部計入
B.應按1/2計入
C.應按1/3計入
D.可不計入
提示:見《人民防空工程設計防火規范》4.1.3。冰場、泳池是有水區域,而靶道、球道區域內基本無人停留,故可不計入防火分區面積。
9汽車庫和修車庫的每個防火分區內的人員安全出口不應少于2個。但符合下列哪兩個條件之一時,可只設一個( )。
Ⅰ.同一時間的人數不超過25人;
Ⅱ.必須是地上車庫;
Ⅲ. 庫內停車位不超過50輛;
Ⅳ.建筑物耐火等級為一級
A.Ⅰ、Ⅲ
B.Ⅰ、Ⅳ
C.Ⅱ、Ⅲ
D.Ⅱ、Ⅳ
提示:見《車庫防火規范》6.0.2。一個防火分區內同時間人數不超過25人,庫內車位不超過50輛時,可以只設一個人員安全出口。
10關于住宅層高的規定,以下哪一條是正確的( )。
A.應等于2.8m
B.不宜大于2.8m
C.不應小于2.8m
D.沒有明確規定
提示:見《住宅設計規范》3.6.1,注意新規范放寬了對住宅層高的限制。
11住宅廚房的操作面凈長度應不小于( )m。
A.1.5
B.1.8
C.2.1
D.2.4
提示:見《住宅設計規范》3.3.3條。
12以下關于住宅公用樓梯設計的敘述,何者是不準確的( )。
A.樓梯踏步寬不應小于0.26m,踏步高度不應小于0.175m
B.樓梯梯段寬度不應小于1.00m,休息平臺寬度不應小于梯段寬度
C.樓梯扶手高度不應小于0.90m,樓梯水平段欄桿長度大于0.50m時,其扶手高度不應小于1.05m
D.樓梯欄桿垂直桿件間凈空不應大于0.11m
提示:《住宅設計規范》4.1.2、4.1.3、4.1.4條。1.00m寬的梯段僅適用于6層以下住宅,注意對休息平臺寬度不應小于1.20m的規定。
13關于將幼兒生活用房設在地下室或半地下室的做法,規范規定是( )。
A.必要時可以
B.不宜
C.不應
D.嚴禁
提示:見《托兒所、幼兒園建筑設計規范》3.1.4條。幼兒生活用房嚴禁設在地下室或半地下室。
14小型車汽車庫內直線坡道的最大縱向坡度是( )。
A.8%
B.10%
C.12%
D.15%
提示:見《汽車庫建筑設計規范》4.1.7條。小型車汽車庫室內直線坡道最大縱坡是15%。
15清代太和殿與唐代大明宮麟德殿體量之比為( )。
A.二者大小相近
B.為麟德殿的2倍
C.為麟德殿的3倍
D.只相當麟德殿的1/3
提示:唐代大明宮麟德殿面闊11間,進深17間,面積約為5 000m2。清代太和殿雖然面闊也是11間,但進深只相當麟德殿的1/3。
最新資訊
- 2026年注冊一級建筑師考試每日一練及答案解析(12月8日)2025-12-08
- 2026年一級注冊建筑師資格考試每日一練及答案解析(11月28日)2025-11-28
- 2026年一級注冊建筑師考試每日一練及答案解析(11月24日)2025-11-24
- 2026年一級注冊建筑師每日一練及答案解析(11月7日)2025-11-07
- 2026年一級注冊建筑師每日一練及答案解析(11月3日)2025-11-03
- 2026年一級注冊建筑師每日一練及答案解析(10月25日)2025-10-25
- 2026年一級注冊建筑師每日一練及答案解析(10月23日)2025-10-23
- 2026年一級注冊建筑師每日一練及答案解析(10月22日)2025-10-22
- 2026年一級注冊建筑師每日一練及答案解析(10月19日)2025-10-19
- 2026年一級注冊建筑師每日一練及答案解析(10月14日)2025-10-14