2005年二級建筑師考試真題(部分)3
更新時間:2009-10-19 15:27:29
來源:|0
瀏覽
收藏
一級建筑師報名、考試、查分時間 免費短信提醒
2004二級場地與建筑設計考題
建筑設計與場地設計……
第一題
場地設計總平面布置:
一山地(有水塘),退讓用地紅線4M……退讓高壓線25M……退讓微波通信線20M……退讓水塘邊線12M……
退讓道路邊線9M……建筑物之間退讓9M,布置一個25X25M的設備用房(一層),一個55X18M的辦公研發樓(六層)……
一個60X30M的工廠……和一個50X50M的貨車停車場以及一個不少于10輛的小車停車場……要求入口有入口廣場……
標注必要的尺寸!……
第二題
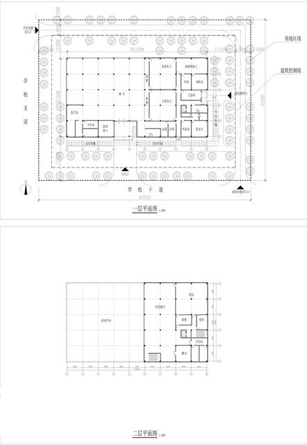
建筑設計 :某中學(700坐)食堂(建筑面積2300平方米)……一層(局部兩層)建筑;
要求:
一層:
1;就餐大廳650平
洗手初36平
廁所36平(要求詳細布置)
管理售卡36平
2;廚房
主食加工120
主庫房36
副食加工120
副食粗加工72
冷庫36
洗滌36
廚師休息36
廚師更衣24
廚師廁所18
二層:
特色餐廳240
雅間36
廁所36
廚房36
廚房120
作圖要求:在地形圖(試卷3上)上畫出一層平面(和總圖一起布置);
在地形圖(試卷4上)上畫出二層平面。


建筑設計答案!……理由:1,方正的造型30MX54M……便于提高手繪做圖!……2,6MX6M的柱網便于面積計算!……因為要求中多是一些36平米,24平米,18平米的要求

場地設計答案!……沒有什么理由!……就是把他說的東西都填進內張圖里
建筑設計與場地設計……
第一題
場地設計總平面布置:
一山地(有水塘),退讓用地紅線4M……退讓高壓線25M……退讓微波通信線20M……退讓水塘邊線12M……
退讓道路邊線9M……建筑物之間退讓9M,布置一個25X25M的設備用房(一層),一個55X18M的辦公研發樓(六層)……
一個60X30M的工廠……和一個50X50M的貨車停車場以及一個不少于10輛的小車停車場……要求入口有入口廣場……
標注必要的尺寸!……
第二題
建筑設計 :某中學(700坐)食堂(建筑面積2300平方米)……一層(局部兩層)建筑;
要求:
一層:
1;就餐大廳650平
洗手初36平
廁所36平(要求詳細布置)
管理售卡36平
2;廚房
主食加工120
主庫房36
副食加工120
副食粗加工72
冷庫36
洗滌36
廚師休息36
廚師更衣24
廚師廁所18
二層:
特色餐廳240
雅間36
廁所36
廚房36
廚房120
作圖要求:在地形圖(試卷3上)上畫出一層平面(和總圖一起布置);
在地形圖(試卷4上)上畫出二層平面。


建筑設計答案!……理由:1,方正的造型30MX54M……便于提高手繪做圖!……2,6MX6M的柱網便于面積計算!……因為要求中多是一些36平米,24平米,18平米的要求

場地設計答案!……沒有什么理由!……就是把他說的東西都填進內張圖里
編輯推薦
最新資訊
- 2026年注冊一級建筑師考試每日一練及答案解析(12月8日)2025-12-08
- 2026年一級注冊建筑師資格考試每日一練及答案解析(11月28日)2025-11-28
- 2026年一級注冊建筑師考試每日一練及答案解析(11月24日)2025-11-24
- 2026年一級注冊建筑師每日一練及答案解析(11月7日)2025-11-07
- 2026年一級注冊建筑師每日一練及答案解析(11月3日)2025-11-03
- 2026年一級注冊建筑師每日一練及答案解析(10月25日)2025-10-25
- 2026年一級注冊建筑師每日一練及答案解析(10月23日)2025-10-23
- 2026年一級注冊建筑師每日一練及答案解析(10月22日)2025-10-22
- 2026年一級注冊建筑師每日一練及答案解析(10月19日)2025-10-19
- 2026年一級注冊建筑師每日一練及答案解析(10月14日)2025-10-14